Wasserman
Cool Client Project: Wasserman
Company Description – Harnessing the extraordinary power of sports, music, entertainment and culture, Wasserman delivers impact that is always meaningful, memorable and measurable.
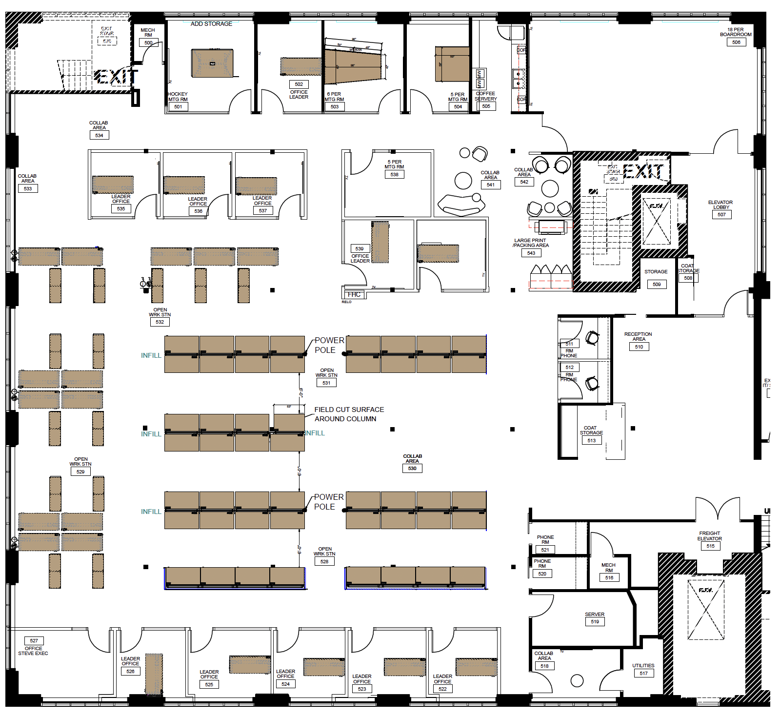
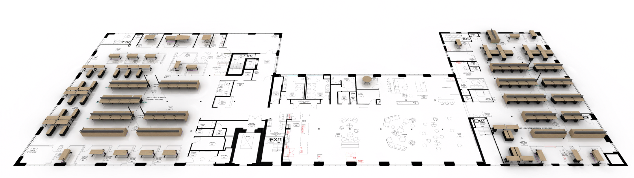
Overview– This multi-floor remodel utilized four of our newly launched products—Vibe, Kinetic, Versi and Milo. Shipped in 48 hours and delivered on time and complete.
Location – Toronto, Canada
Some of the products included:








